よいいえ・菊池技建「みんながよい家づくり」
よいいえ?
標準仕様
ZEH仕様
長期優良住宅
住まいの構造
家づくりの流れ
よいいえQ&A
会社案内
理念・会社概要
スタッフ紹介
よいいえSE会
商品紹介
よいいえConcept
よいいえFree
設計アイディア集
オプションパック
新築実例
よいいえConcept
よいいえFree
よいみせ
リフォーム
よいいえリフォーム
リフォーム実例
オンライン診断
メンテナンス
アフターフォロー
お手入れ情報
お問合せ
HOME
>
商品紹介/よいいえ
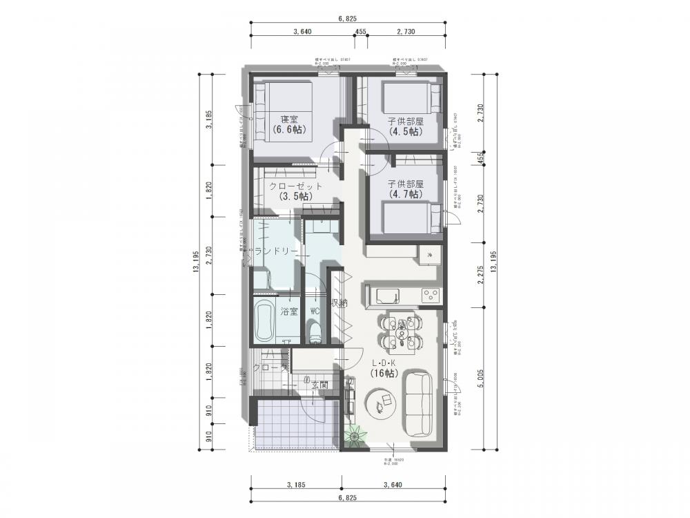
HIRAYA25S 1,890万円~(2,079万円・税込)建物25坪
■間取り/3LDK
■建築データ
・建築面積 / 87.15㎡( 26.31坪)
・1階床面積/ 84.25㎡( 25.43坪)
・延床面積 / 84.25㎡( 25.43坪)
・施工面積 / 87.15㎡( 26.31坪)
2026.01.09:菊池技建:[
商品紹介/よいいえ
]
copyright (C)
kg
powered by
samidare
株式会社 菊池技建
ツイート
2026.01.09:[
編集
/
削除
]
この記事へのコメントはこちら
▽コメントはこちら(管理者の承認後に公開されます。)
お名前
(必須)
件名
(必須)
本文
(必須)
URL
編集パスワード
(必須)
※このコメントを編集・削除するためのパスワードです。
※半角英数字4文字で入力して下さい。記号は使用できません。
<< 次の記事
前の記事 >>
この記事へのコメントはこちら