農家の嫁ブログ

▼東海林久美の家遊びのススメーストーブ1台であったかい間取り

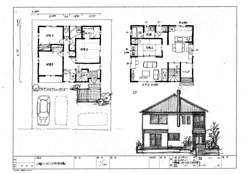
二階をリビングにしたい方がとっても増えています。

段差をなくす、バリアフリーの考え方もありますが、

今、元気なうちは2階の眺めのいいところで毎日を過ごしたい。

という希望が多いようです。


そして何より、一日中二人でいる空間をどう共有するのか、

やりたいことはいっぱいあるけどそのために個室を作るのも・・・

かといって、ダイニングテーブルで好きなことをしていると

食事のときに片付けなくてはなりません。


お互いのやりたいことを遠慮なく出来るように机も置きました。


吹き抜けを使って家全体を暖めれば、寝室も寒くありません。

高気密、高断熱のこんなプランの家なら毎日、楽しいですね。
画像 ( )
2009.03.07:tokairin

HOME

(C)

powered by samidare