樽川技建|増子ノート

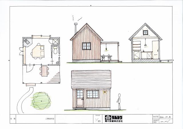
▼庭と畑と・・・小屋(菓子工房計画)

設計の増子です。

木の家を建てたなら、
外に作る物置も木で建てたい、というご要望を頂くことがあります。

コンパクトに小さな家を建てたなら、
収納不足になることもあります。

そんな時、建物と同じようなデザインで、
小屋を作るのは、いかがですか?

今回、施主さんのちょっとしたご要望に先走り(しすぎて)
6帖の菓子工房を計画してみました。

工房に限らず、母屋から避難したい気分の時、
じっくり本を読みたい時、
趣味に没頭したい時、

小さな’小屋’があると、
こころが豊かになりそうな気がします。
画像 ( )
2010.10.09:taru_mashi

HOME

(C)

powered by samidare